Rivesaltes (66600) PO 66600 A VENDRE Rivesaltes, Grande Maison Ancienne à rénover à acheter

Réf : 6772 125 000 €

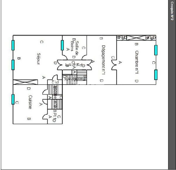
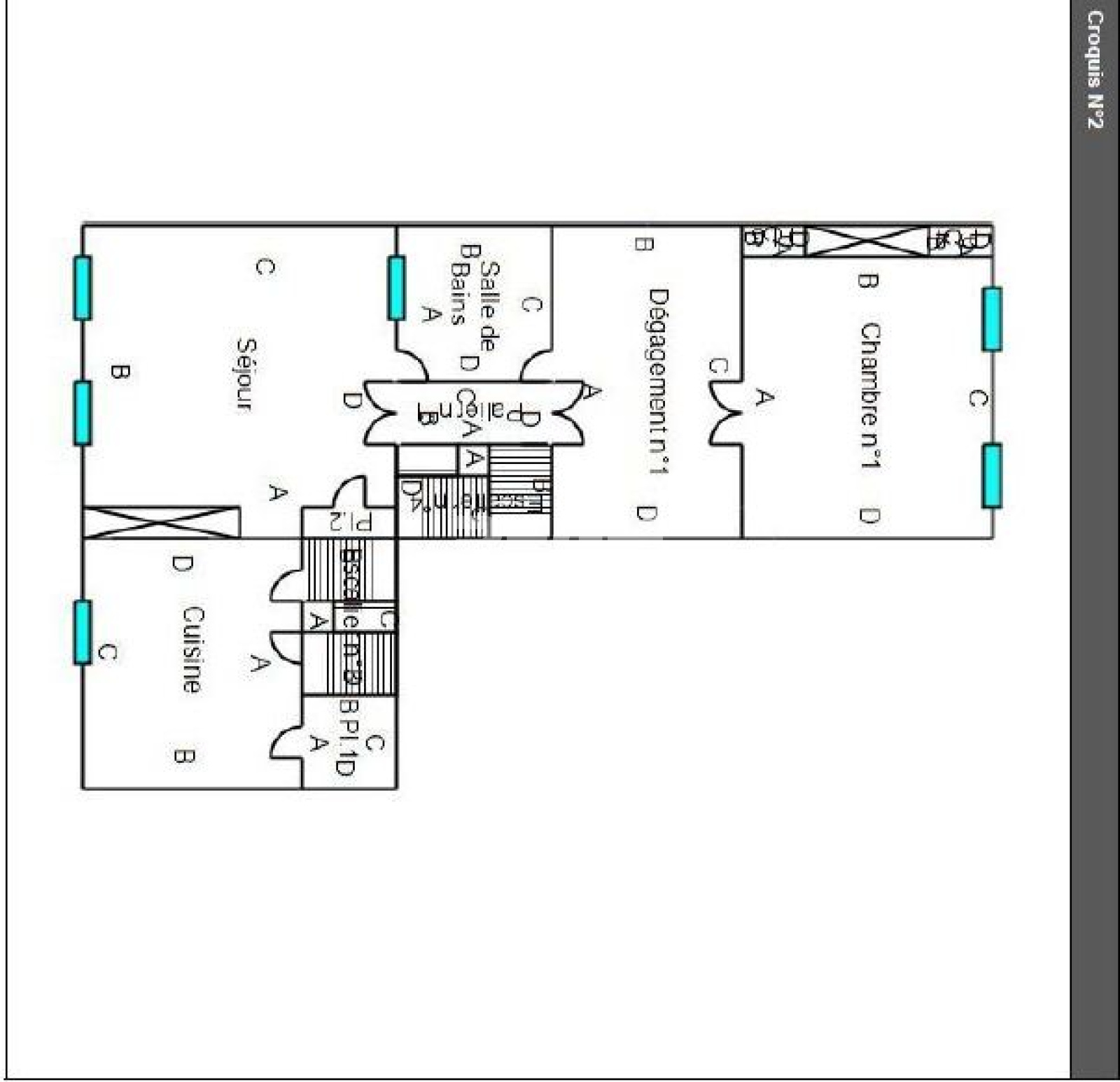
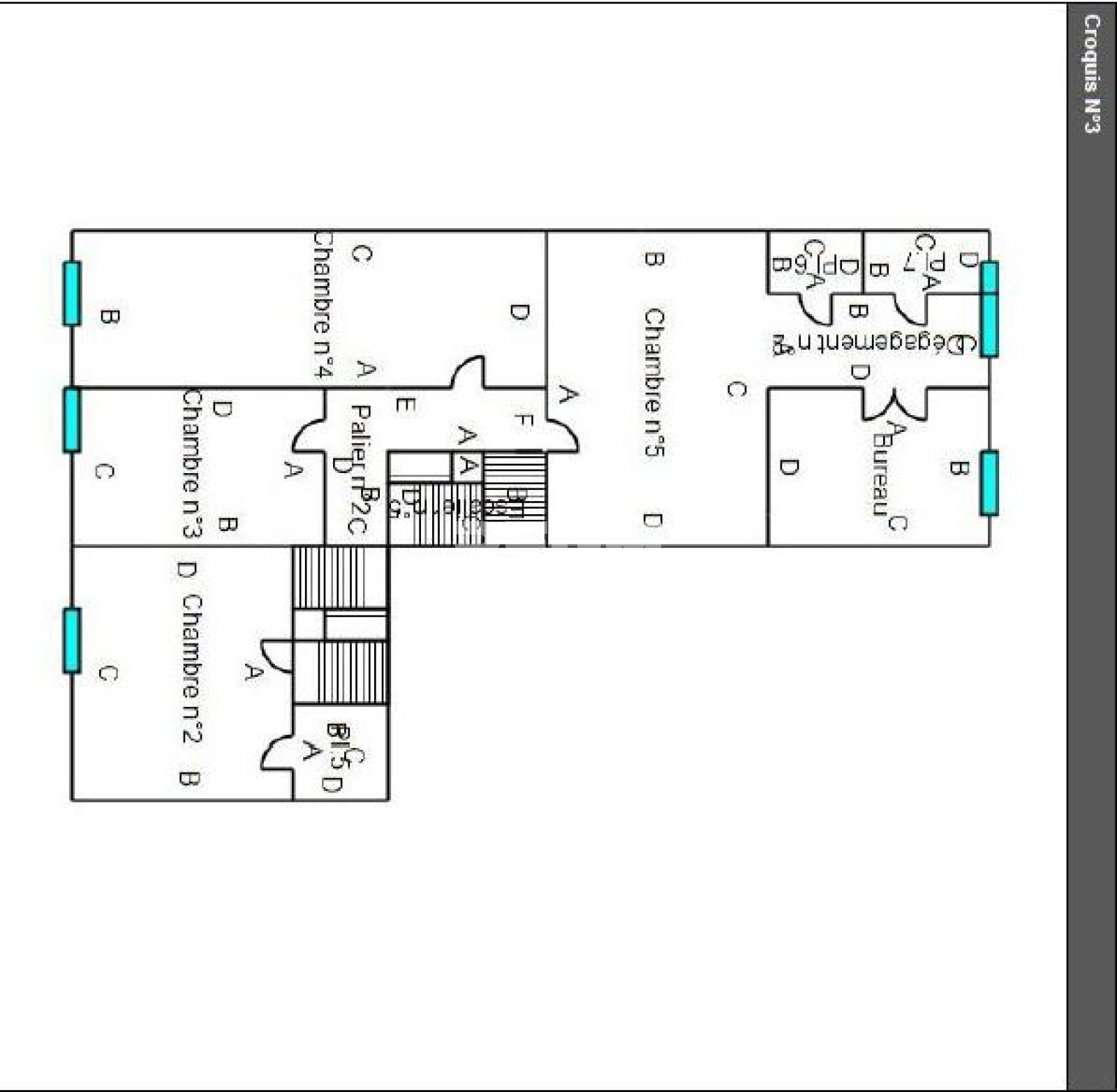
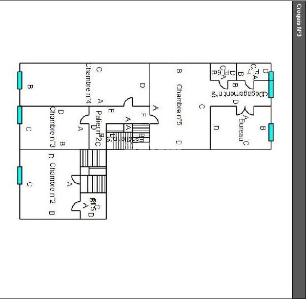
66600 Sur la commune de Rivesaltes, plusieurs possibilités pour cette maison de village traversante de type F 9 investissement ou habitation. L'espace intérieur est réparti sur 4 niveaux La construction de cette propriété remonte à 1900, pendant les années art déco. Elle vous fait bénéficier d'une partie rdc avec remise magasin ou garage possible. Le prix est fixé à environ 490 € par mètre carré (125 000 euros). N'hésitez pas à contacter l'agence immobilière Jacques MAURY si ce bien a retenu votre attention. Ce logement fera le bonheur d'une grande famille ou d'un investisseur

Annonce proposée par un agent commercial

TRAD_SIROCCO_Caracteristique Valeurs
Code postal 66600
Surface habitable (m²) 255 m²
surface terrain 100 m²
Surface loi Carrez (m²) 255 m²
Nombre de chambre(s) 5
Nombre de pièces 9
Etage 4
Nombre de niveaux 4
Ascenseur NON
Vue village
TRAD_SIROCCO_Caracteristique Valeurs
Nb de salle d'eau 1
Interphone NON
Visiophone NON
Balcon NON
Loggia NON
Terrasse NON
Murs mitoyens 2
Nombre de garage 1
Cave OUI
Surface cave (m²) 10
Exposition Sud
Année de construction 1900
Terrain piscinable NON
Terrain arboré NON
Terrain divisible NON
TRAD_SIROCCO_Caracteristique Valeurs
Copropriété NON
TRAD_SIROCCO_Caracteristique Valeurs
Prix de vente 125 000 €
Les honoraires d'agence seront intégralement à la charge du vendeur  
Taxe foncière annuelle 1 476 €
DPE GES
DPE vierge
  • Commerces et santé
  • Loisirs
  • Ecoles
  • Transports
  • Pratique

Nos outils

Imprimer
Intéressé(e) par Ce bien ?

* Champ obligatoire

contacter l'agence

Les informations recueillies sur ce formulaire sont enregistrées dans un fichier informatisé par La Boite Immo pour la gestion de la clientèle/prospects de REGM. Elles sont conservées jusqu'à demande de suppression et sont destinées à REGM. Conformément à la loi « informatique et libertés », vous pouvez exercer votre droit d'accès aux données vous concernant et les faire rectifier en contactant REGM. Nous vous informons de l’existence de la liste d'opposition au démarchage téléphonique « Bloctel », sur laquelle vous pouvez vous inscrire ici : https://www.bloctel.gouv.fr/
Ce site est protégé par reCAPTCHA, les Politiques de Confidentialité et les Conditions d'Utilisation de Google s'appliquent.

Ces biens peuvent aussi vous intéresser
Perpignan (66000)

66000 À Perpignan, bel appartement T4 avec balcon garage et cave