Troyes (10000) MAISON A RENOVER

Réf : 6812

Venez découvrir cette charmante maison à rénover, et oui il va falloir se remonter un peu les manches,

mais en entrant vous trouverez un sol d'époque, arches à chaque ouverture, vous pouvez en faire un jolie petit cocon

entiérement de plain pied, avec possibilité d'agrandissement

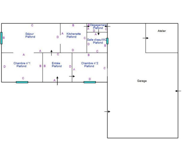
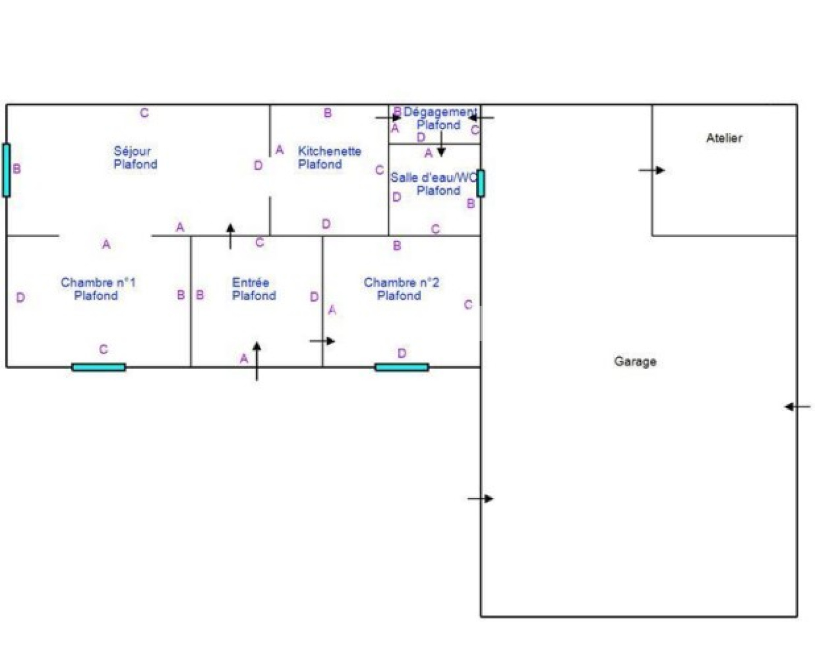
elle se compose actuellement de 2 chambres, salon, cuisine, salle d'eau, un atelier et un garage de plus de 50 m2 transformable

Contactez moi pour jetter un petit coup d'oeil

Idéale premier achat ou investissement

Annonce proposée par un agent commercial

TRAD_SIROCCO_Caracteristique Valeurs
Code postal 10000
Surface habitable (m²) 42 m²
Surface loi Carrez (m²) 41 m²
Nombre de chambre(s) 2
Nombre de pièces 3
TRAD_SIROCCO_Caracteristique Valeurs
Nb de salle d'eau 1
Cuisine Séparée
Nombre de garage 1
TRAD_SIROCCO_Caracteristique Valeurs
Copropriété NON
TRAD_SIROCCO_Caracteristique Valeurs
Les honoraires d'agence seront intégralement à la charge du vendeur  
Taxe foncière annuelle 638 €
DPE GES
DPE vierge
  • Commerces et santé
  • Loisirs
  • Ecoles
  • Transports
  • Pratique

Nos outils

Imprimer