Saint-Malo (35400) Maison en pierres 4 pièces à rénover

Réf : 2571
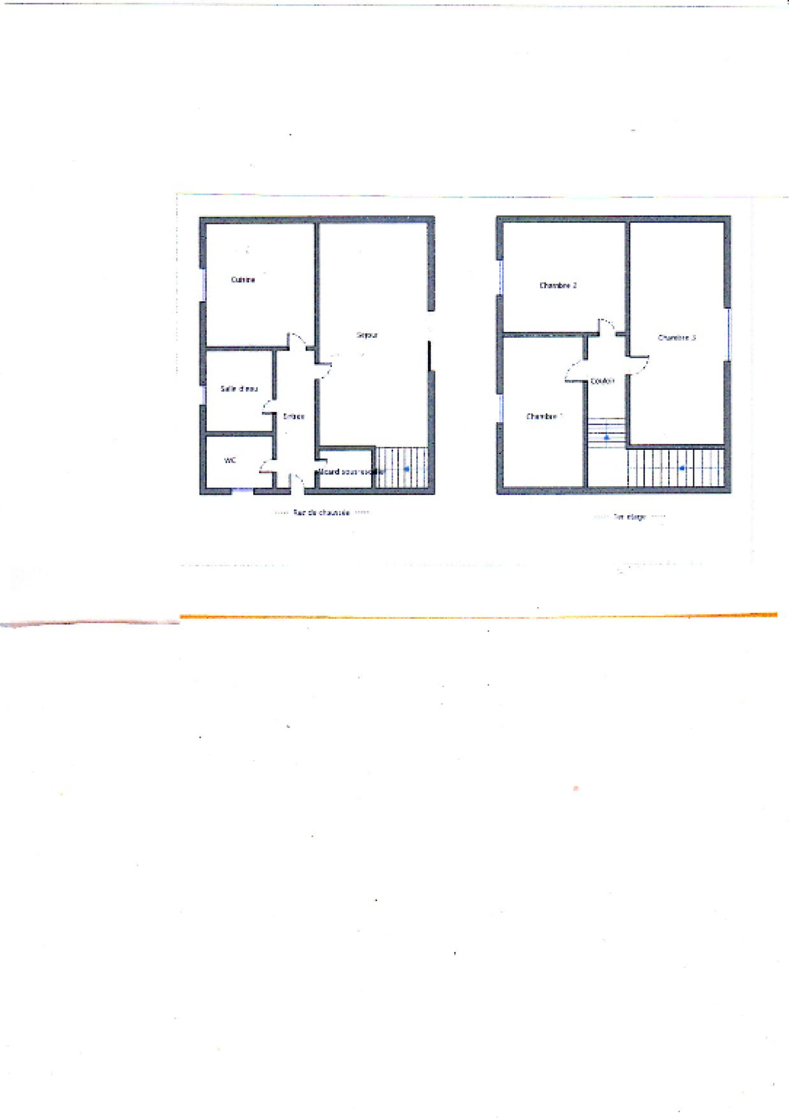
Armelle DUCRAY-BIRE OFFRE AU PRIX DU MANDAT en EXCLUSIVITE, à Saint Malo dans le quartier recherché de Paramé, sur une parcelle de 344m2, maison en pierres à rénover avec jardin devant et à l'arrière exposé E/Ouest. Elle se compose au rez de chaussée d'une entrée, séjour avec baie vitrée ouvrant sur jardin Ouest, cuisine attenante, salle d'eau, wc indépendant. A l'étage 3 chambres sur parquet d'origine, grenier au dessus avec potentiel d'aménagement. Garage, dépendance jardin, pour un beau projet de rénovation complète. La toiture ardoise a été refaite en 2009. Possibilité d'extension. Moins de 2 km de la plage de Rochebonne, 700m des commerces et écoles de Paramé.

Annonce proposée par un agent commercial


Les informations sur les risques auxquels ce bien est exposé sont disponibles sur le site Géorisques
TRAD_SIROCCO_Caracteristique Valeurs
Code postal 35400
Surface habitable (m²) 70 m²
surface terrain 344 m²
Nombre de chambre(s) 3
Nombre de pièces 4
Nombre de niveaux 2
TRAD_SIROCCO_Caracteristique Valeurs
Nb de salle d'eau 1
Cuisine Séparée
Mode de chauffage Gaz
Type de chauffage Radiateur
Format de chauffage Individuel
Murs mitoyens 1
Exposition Est-Ouest
Année de construction 1960
TRAD_SIROCCO_Caracteristique Valeurs
Taxe foncière annuelle 753 €
DPE GES
DPE ANCIENNE VERSION
  • Commerces et santé
  • Loisirs
  • Ecoles
  • Transports
  • Pratique

Nos outils

Imprimer
Rez de chaussée
entrée 3 m²

placard

w.c. 1,50 m²

salle d'eau 3 m²

cuisine 9 m²

séjour 20 m²

porte fenêtre

garage

17m2

Etage 1
palier 1,91 m²

placard

chambre 1 9 m²

chambre 2 10,35 m²

chambre 3 13,32 m²